力士樂滾珠絲杠傳動系統為設計員開辟了利用被驅動的絲杠或被驅動的螺母完成的傳動和定位任務的廣闊領域.我公司是力士樂滾珠絲杠的代理商,能成為你滿意的行星滾珠絲杠的供應商.






彎曲說明
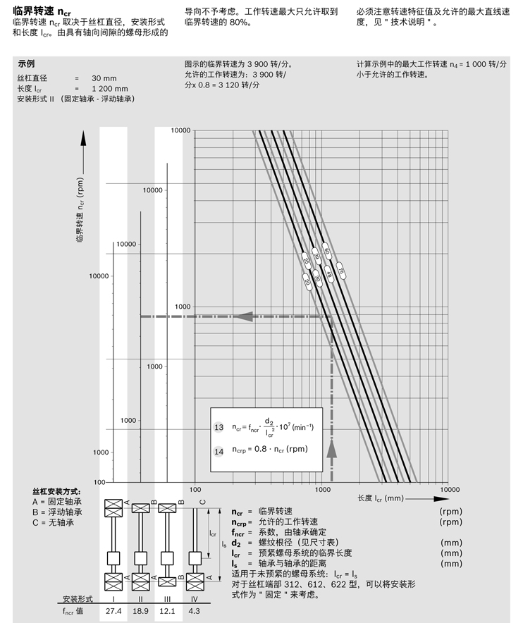
有效的彎曲長度 l c 是在受力影響的情況下螺母和固定軸承之間(中心距)或螺母和絲杠端部之間不受支撐的*大絲杠長度。
在彎曲時,將螺母看作軸承位置。
對于"固定式螺母",必須滿足以下前提條件:
– 無間隙螺母,
– 螺母固定安裝在導軌上,
– 螺母無扭矩,即導軌吸收導入的扭矩,
– 由于外部影響(例如溫度),不預緊。
只要有一個或多個"固定式螺母"的條件不滿足,則必須選擇"浮動式螺母"的系數。
如果移動絲杠,則例如在所謂的被驅動螺母時出現安裝形式 III。在此可以將螺母視為已固定張緊。
只在不通過導軌支撐螺母時,采用安裝形式 VI。

機床、木工機械、激光切割等